株式会社大幸建設の販売実績一覧
自社所有 販売実績一覧表更新日2026年1月
| 所在 | 区画数 | 面積 | 現況 | |
| 明石市 | 明石市材木町 マンション用地販売 | 1区画 | 864.2㎡ | |
| 明石市魚住町住吉1丁目 住宅用地 | 2区画 | 244㎡ | ||
| 明石市魚住町西岡 中古住宅販売 | 1区画 | 68.3㎡ | ||
| 明石市魚住町中尾2区画 住宅用地 | 2区画 | 258㎡ | ||
| 明石市西明石西町1丁目 住宅用地 | 1区画 | 182.92㎡ | ||
| 明石市大久保町西島 住宅用地 | 1区画 | 160㎡ | ||
| 明石市大久保町大窪2区画 住宅用地 | 2区画 | 360㎡ | ||
| 明石市大久保町大窪 店舗付き住宅販売 | 1区画 | 150㎡ | ||
| 明石市魚住町中尾3区画 分譲販売 | 3区画 | 448㎡ | ||
| 明石市魚住町金ケ崎4区画 分譲用地販売 | 5区画 | 677㎡ | ||
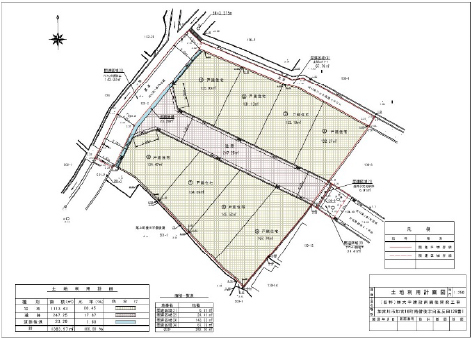
| 明石市西朝霧丘3区画 分譲用地 | 3区画 | 1,615㎡ | ||
| 明石市東野町 住宅用地用地 | 1区画 | 115㎡ | ||
| 明石市荷山町 分譲用地販売 | 1区画 | 3,684㎡ |
魚住町中尾2区画 住宅用地

藤江 商業開発用地販売

| 所在 | 区画数 | 面積 | 現況 | |
| 神戸市 | 神戸市西区枝吉1丁目 中古住宅 | 1区画 | 155㎡ | |
| 神戸市垂水区桃山台1区画 住宅用地 | 1区画 | 233㎡ | ||
| 神戸市北区花山中尾台 太陽光発電用地 | 1区画 | 38,628㎡ | FIT取得済 |
播磨町古田1区画 店舗用地

| 所在 | 区画数 | 面積 | 現況 | |
| 加古川市 | 加古川市加古川町稲屋2区画 住宅用地 | 2区画 | 300㎡ | |
| 加古川市加古川町稲屋 住宅用地 | 1区画 | 150㎡ | ||
| 加古川市八幡町1区画 資材置場用地 | 1区画 | 1,419㎡ | ||
| 加古川市別府町西脇6区画 開発用地 | 6区画 | 1080.5㎡ | ||
| 加古川市加古川町大野2区画 住宅用地 | 2区画 | 450㎡ | ||
| 加古川市加古川町南備後8区画 開発用地 | 8区画 | 1,377㎡ | ||
| 加古川市尾上町口里11区画 開発用地 | 11区画 | 2,303㎡ | ||
| 加古川市尾上町口里2区画 住宅用地 | 2区画 | 260㎡ | ||
| 加古川市野口町野口 店舗用地 | 1区画 | 153.1㎡ | ||
| 加古川市加古川町南備後 中古住宅販売 | 1区画 | 273㎡ | ||
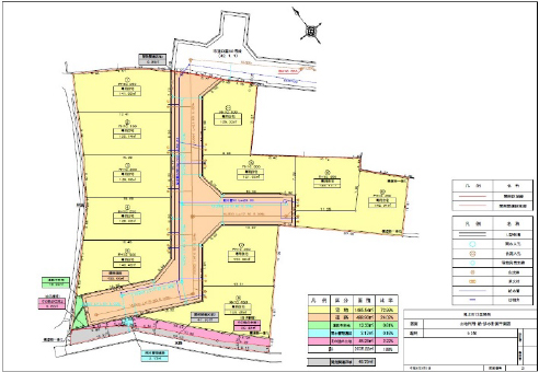
| 加古川市野口町野口 位置指定 分譲用地販売 | 10区画 | 1,865㎡ | ||
| 加古川市米田町平津 分譲用地販売 | 1区画 | 816㎡ | ||
| 加古川市加古川町粟津 分譲用地販売 | 1区画 | 500㎡ | ||
| 加古川市尾上町安田 商業用地販売 | 1区画 | 12,855㎡ | ||
| 加古川市加古川町北在家 商業用地販売 | 1区画 | 996㎡ |
加古川町稲屋 住宅用地

別府町西脇6区画 開発用地

加古川町南備後8区画 開発用地


尾上町口里11区画 開発用地



尾上町口里2区画 住宅用地

| 所在 | 区画数 | 面積 | |
| 加古郡 | 加古郡稲美町国安1区画 住宅用地 | 1区画 | 130㎡ |
| 加古郡播磨町古田1区画 店舗用地 | 2区画 | 306.5㎡ | |
| 加古郡播磨町本荘1丁目 住宅用地 | 1区画 | 167.1㎡ |
播磨町古田1区画 店舗用地

| 所在 | 区画数 | 面積 | |
| 高砂市 | 高砂市伊保港1丁目 店舗用地 | 1区画 | 110㎡ |
| 高砂市阿弥陀町阿弥陀 資材置き場用地 | 1区画 | 1,100㎡ | |
| 高砂市阿弥陀町阿弥陀 住宅用地 | 1区画 | 316㎡ | |
| 高砂市阿弥陀町阿弥陀 倉庫付き収益用地 | 1区画 | 1,066㎡ | |
| 高砂市米田町米田 商業用地販売 | 1区画 | 1,511㎡ |

